Aller au contenu principal

L’archive du mois de septembre 2013

« D’une pierre deux coups » ! Aménager tout en valorisant le patrimoine architectural, tels sont les objectifs à concilier pour les régions qui possèdent des bâtiments classés monuments historiques. Saviez-vous que cela pouvait arriver à ces jeunes institutions ? Cent ans après la promulgation de la loi du 31 décembre 1913 sur les monuments historiques, célébrée à l’occasion du week-end des Journées européennes du patrimoine les 14 et 15 septembre, et en cette période de rentrée, nous vous proposons les enjeux posés par sa préservation de ce patrimoine en évoquant le cas des lycées…

La loi de 1913 donne naissance à un système de sauvegarde du patrimoine historique français pour les monuments dotés d’un intérêt public « du point de vue de l’histoire ou de l’art » en créant pour eux deux niveaux de protection juridique (« inscription » et « classement »).

Les monuments « classés » dont la Région est propriétaire sont des lycées. Cette propriété est l’héritage des 2 étapes successives de décentralisation : en 1986, la Région devient compétente dans le domaine de l’éducation, et est chargée de l’entretien et de la rénovation des lycées publics. L’ « acte II » de la décentralisation, intervenu en 2004, la rend pleinement propriétaire des biens immobiliers de tous les lycées publics du territoire régional (et plus seulement des locaux dont elle avait assuré la construction).

Parmi ce patrimoine immobilier, figurent notamment 2 ensembles monumentaux classés : l’abbaye Saint-Vincent au Mans (actuel Lycée Bellevue) et l’abbaye Saint-Serge à Angers (Lycée Joachim-Du-Bellay).

Les archives conservées sur ces bâtiments sont particulièrement révélatrices des questions que pose la restauration des monuments historiques : comment respecter ce patrimoine architectural, en lui redonnant son caractère et son authenticité, tout en l’adaptant à ses usages actuels ? Dans le cas des lycées, utilisés par les élèves et le personnel pour des besoins pédagogiques, logistiques, d’hébergement et de restauration, la question de l’équilibre à mettre en œuvre est flagrante .

Avant même d’en être propriétaire, la Région est très vite confrontée à la rénovation de ce patrimoine : quatre ans après la prise en charge de l’entretien des lycées publics, un vaste programme de rénovation des lycées est engagé. Au lycée Bellevue, constitué autour de l’ancienne abbaye bénédictine de Saint-Vincent, l’état du bâti est inquiétant : vétusté qui réduit l’espace utilisable par les lycéens, façades dégradées dont les pierres sont très altérées, comme en témoignent les photographies ci-contre.

Comment redonner aux bâtiments leur caractère et leur authenticité, « leur dignité et l’unité [éventuellement perdues] depuis les transformations et adjonctions apportées », selon les termes de l’architecte en chef des monuments historiques chargé de la maîtrise d’œuvre ? Les documents techniques réalisés en amont ou au cours des travaux témoignent du souci de ce respect dans les moindres détails…

Des profils de corniches et types de pierres des façades…

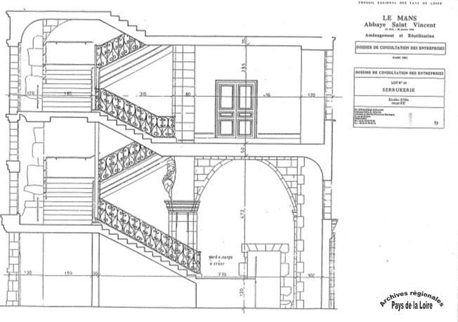
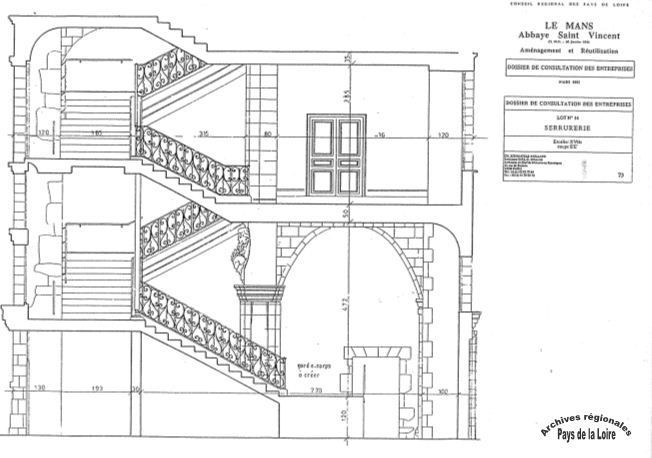
D’autres exemples pourraient être cités : tel le choix des motifs de ferronnerie de l’escalier 17e siècle de la Trinité (basé sur un motif retrouvé dans les ressources du Centre de recherche des monuments historiques). 

Mais rénover, c’est aussi adapter aux usages contemporains, créer des locaux fonctionnels pour les lycéens et les personnels des lycées, conformes aux usages pédagogiques et aux besoins de lieux de vie (internats, réfectoires, foyer).

Equilibre qui semble réussi lorsque l’on découvre l’aménagement d’un réfectoire ou d’un centre de documentation (CDI) dans les belles salles voûtées des abbayes Saint-Vincent et Saint-Serge.

Et si vous veniez découvrir ces documents et bien d’autres choses encore ce week-end ? L’Hôtel de Région est ouvert à la visite : visites architecturales et découverte de l’île de Nantes en bateau samedi après-midi et dimanche toute la journée, incluant une présentation du Centre de ressources où sera exposée une sélection de documents d’archives sur le thème des lycées monuments historiques… 

Références des documents présentés :

- 36W 243 : Dépliant édité pour l’inauguration du lycée Joachim Du Bellay après la restructuration de l’abbaye Saint-Serge (1989) (Archives ancêtres Direction Communication)

- 330PR 82 : reproduction d’une gravure représentant l’abbaye Saint-Vincent du Mans au 17e siècle (dossier de subvention à l’association des Amis de l’abbaye de Saint-Vincent) (Archives Direction Affaires culturelles et cadre de vie)

- 428PR 145 : État des lucarnes avant et après restauration de l’abbaye Saint-Vincent au Mans (lycée Bellevue), Planche extraite du rapport photographique de l’entreprise chargée de la restauration des détails de la façade (1993) (Archives Direction Patrimoine immobilier)

- 43W 706 : Elévation représentant la modénature (profils des corniches) et les pierres utilisées pour l’aile Ouest de l’Abbaye de Saint-Vincent  [1995] (Dossier des ouvrages exécutés (DOE) pour la restauration extérieure) (Archives Direction Éducation et enseignement supérieur)

- 428PR 154 : Détails des serrureries existants en vue de leur reproduction pour l’aménagement de l’Abbaye de Saint-Vincent (1993), planche extraite du carnet de détail annexé au cahier des charges techniques particulières (Archives Direction du patrimoine immobilier)

- 428PR 150 : Coupe de l’escalier 17e s. de l'abbaye Saint-Vincent, extrait du dossier de consultation des entreprises (1992) (Archives Direction Patrimoine immobilier)

- 43W 708 : Coupe d’une chambre d’internat aménagée dans les étages supérieurs de l’Abbaye Saint-Vincent (1992), planche extraite du Dossier de consultation des entreprises pour l’aménagement et la réutilisation de l’abbaye (Archives Direction Éducation et enseignement supérieur)

- 382PR 6 : photographies des lycées Bellevue et Joachim-Du-Bellay (1995) (Archives Direction Communication)

Sources :

- Architectures contemporaines et monuments historiques. Guide des réalisations en France depuis 1980.  ROUILLARD (Dominique), éd. Le Moniteur, Paris, 2006.

- L’abbaye Saint-Vincent du Mans, LEVY (André) (dir), éd. La Reinette, Le Mans, 1998.